20
$1,199,000 Sale
Listed 57 days ago
5045 Central Avenue
· 3
· 1
· 1
· 1049
Key Facts
Key facts for 5045 Central Avenue
Property Type
House, Rancher/Bungalow
Parking
1 garage, 5 parking
MLS #
R3034321
Size
1049 sqft
Basement
Crawl Space
Listed on
-
Lot size
6349.00 sqft
Tax
$4,485.57 /yr
Days on Market
-
Year Built
1957
Maintenance Fee
-
Description
Fantastic opportunity to own this well maintained rancher on a crawl in Central Ladner location. A perfect starter, retirement rancher, investment property, or build new! ENDLESS OPTIONS! Situated on a private west facing yard with spacious sun deck, manicured gardens, shed and detached garage. Upda...tes include floors, appliances, hot water tank, roof and windows. Prime location just steps to Hawthorne school and Park and walking distance to town center shops, restaurants, trails, and transit!
Similar Properties (No results)
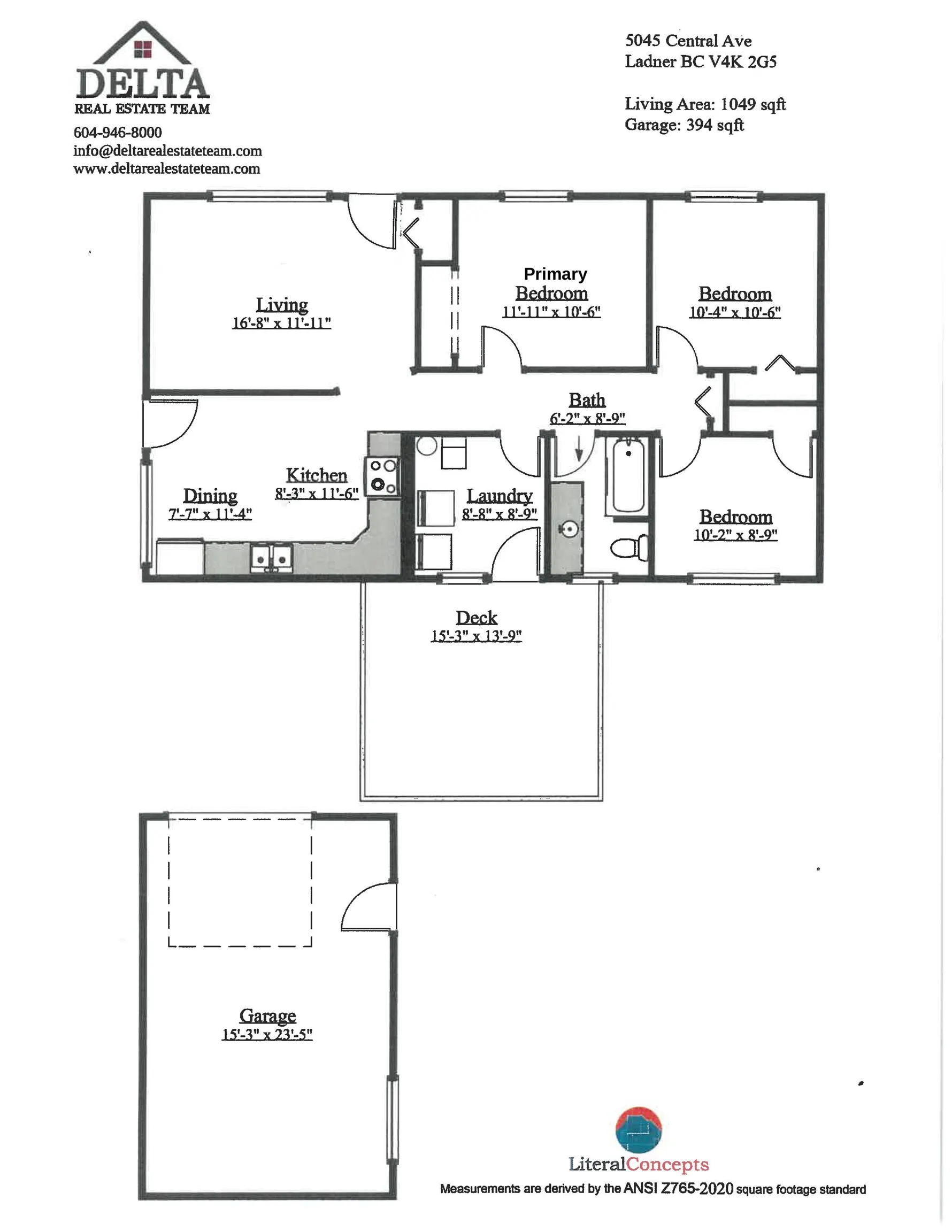
Room Types
Living Room
-
Dimensions 11'11 x 16'8
198.61 sqft
Dining Room
-
Dimensions 11'4 x 7'7
85.94 sqft
Kitchen
-
Dimensions 11'6 x 8'3
94.88 sqft
Courtesy of: RE/MAX City Realty